
--「嘗試在這裡按下暫停鍵,好好感受當下的自己。」
基本資訊
| 類型 | 住宅空間 |
| 地區 | 新北市 |
| 屋況 | 舊屋翻新 |
| 坪數 | 30坪 |
| 成員 | 4人 |
| 設計重點 | 日式木質調,格柵錯落增加空間感 |
📐設計提案 / 未施工
設計故事|剛剛好的故事
這是一場為「喘口氣的生活節奏」做的設計提案。
屋主喜歡明亮有質感的木質調,
在空間的編排下,我們運用橫向的窗景、直向的格架、錯落的層板與收納界線,
讓空間既清楚又流動,像一首慢拍的日常旋律。
我們希望這裡不是急著完成什麼,而是練習「停下來」的所在。
讓光線、空氣、人的心情,都能好好地慢下來。
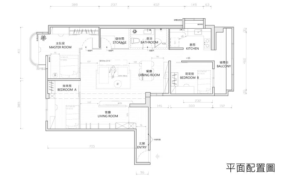
平面規劃|

3D擬真圖
玄關|


客餐廳|
我們想像一種日式的質感,但不是靜到無聲的禪。
而是有風、有光、有留白的日常。
線條交錯著鋪陳動線,
燈光則輕輕推著我們走入空間,陪伴我們一起慢慢生活。






浴室|
在浴室空間裡,設計了一區水波紋的跳色方型磚~
在確保整體設計氛圍的前提,我們希望生活的色彩是繽紛而同時沉靜的。

廚房|

臥室|
運用既有空間做出一體延伸感,按下暫停鍵,這張書桌留給放空、寫筆記時的微小片刻。





Apricity Studio|合作洽詢
想讓自己的空間也有這樣的光與溫度嗎?我們一起出發吧☀️
🔍還在了解中?先看看這裡:
📘品牌合作導覽指南頁(Let’s go!)















無留言